Удалённая работа | Работа фрилансера Makafuga Максим [Makafuga] | Проект реконструкции частного жилого дома 2006
-   -
 

Войти на сайт

Забыли пароль? | Регистрация

- Проекты     Фрилансеры     Блоги     Статьи     Сервисы     Инфо-центр     Поиск -

Фрилансер

Makafuga Максим Makafuga Максим
Нет специализации

Логин: Makafuga
Активность: 18.02.2014 в 22:08 по мск
Сейчас на сайте: Оффлайн нет
Написать личное сообщение Написать личное сообщение
Добавить в команду Добавить в команду
Подать жалобу Подать жалобу


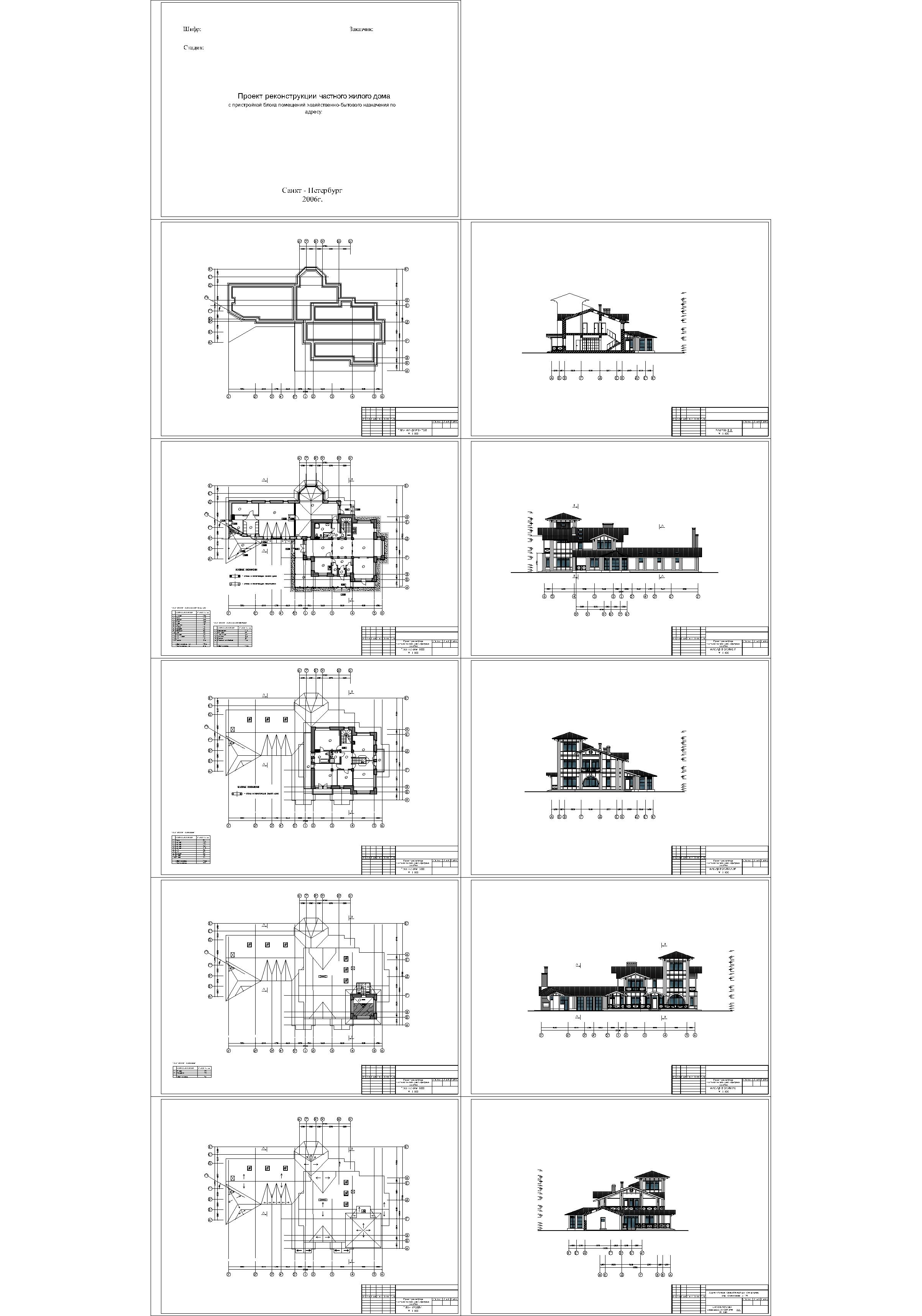
Проект реконструкции частного жилого дома 2006 Категория: Дизайн интерьера

Проект реконструкции частного жилого дома 2006

 
Описание:
Разработаны совместно с Привалов О.Ю.

 
 
Предыдущая работа: Освещение фасада и прилегающей территории.Частный дом в г.Пушкин 2008 Следующая работа: Дача 2007

Переход между работами данного фрилансера возможен также с помощью стрелок влево и вправо при зажатой клавише Ctrl.
   
Комментарии к работе (0):

Комментарии к данной работе отсутствуют.

 
-   -
© 2006-2026 Free-lancers.net
Фрилансеры. Удалённая работа.
В ожидании чуда - 26.06.2026 в 14:04
admin@free-lancers.net
     

Rambler's Top100
О проекте | Обратная связь