Удалённая работа | Работа фрилансера Пермяков Павел [Permyak] | Маленькая италия
-   -
 

Войти на сайт

Забыли пароль? | Регистрация

- Проекты     Фрилансеры     Блоги     Статьи     Сервисы     Инфо-центр     Поиск -

Фрилансер

Пермяков Павел Пермяков Павел
Нет специализации

Логин: Permyak
Активность: 25.01.2020 в 12:53 по мск
Сейчас на сайте: Оффлайн нет
Написать личное сообщение Написать личное сообщение
Добавить в команду Добавить в команду
Подать жалобу Подать жалобу


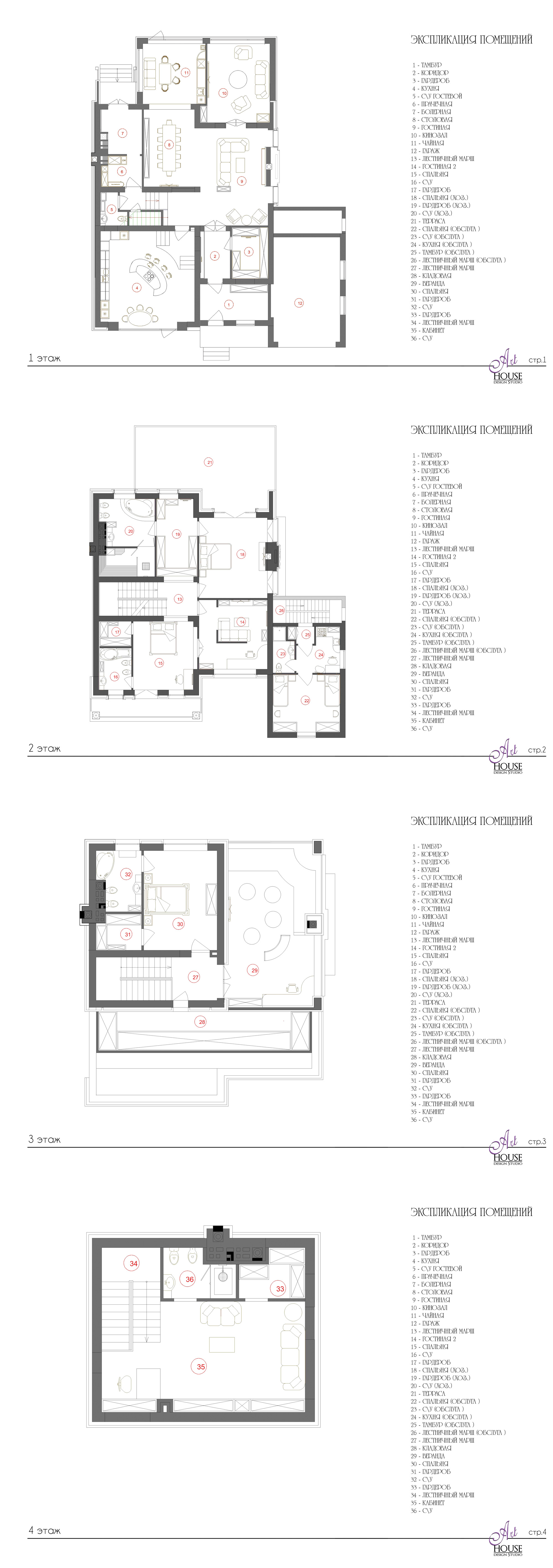
Маленькая италия Категория: Дизайн интерьера

Маленькая италия

 
Описание:
планировка

 
 
Предыдущая работа: Маленькая италия2 Следующая работа: спа 2

Переход между работами данного фрилансера возможен также с помощью стрелок влево и вправо при зажатой клавише Ctrl.
   
Комментарии к работе (0):

Комментарии к данной работе отсутствуют.

 
-   -
© 2006-2026 Free-lancers.net
Фрилансеры. Удалённая работа.
В ожидании чуда - 26.06.2026 в 14:04
admin@free-lancers.net
     

Rambler's Top100
О проекте | Обратная связь