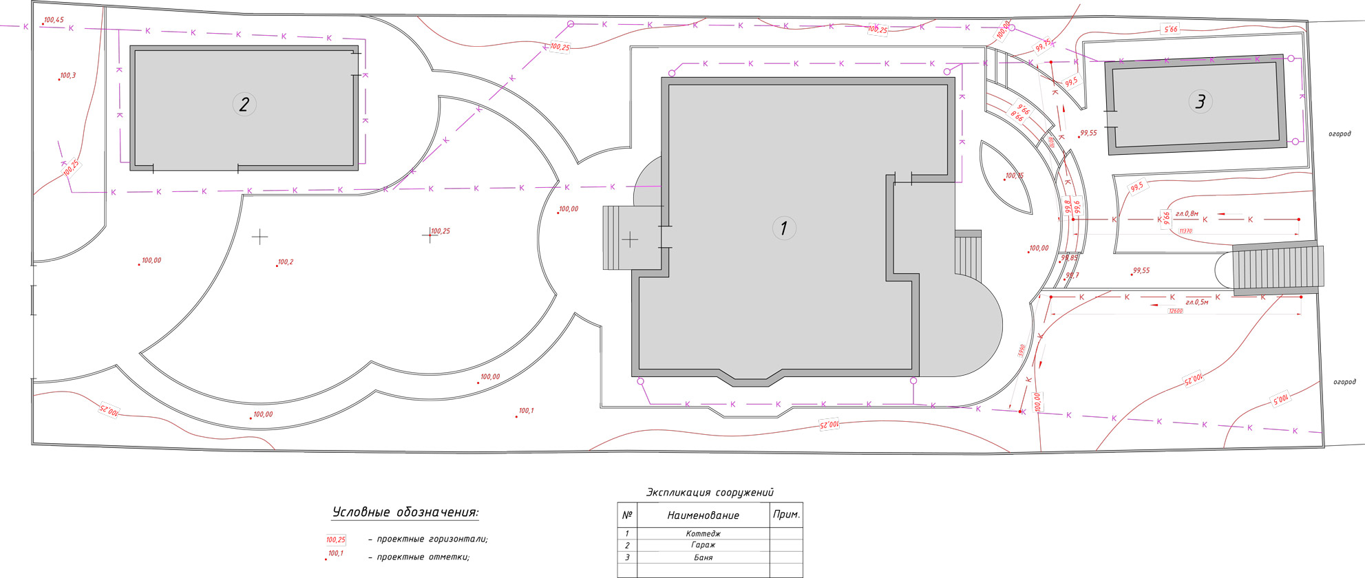
Удалённая работа | Работа фрилансера Соловьева Анна [SoloViola] | План дренажа. Проект частного сада (15,4 сотки).
-   -
 

Войти на сайт

Забыли пароль? | Регистрация

- Проекты     Фрилансеры     Блоги     Статьи     Сервисы     Инфо-центр     Поиск -

Фрилансер

Соловьева Анна Соловьева Анна
Ландшафтный дизайн

Логин: SoloViola
Активность: 30.01.2013 в 17:04 по мск
Сейчас на сайте: Оффлайн нет
Написать личное сообщение Написать личное сообщение
Добавить в команду Добавить в команду
Подать жалобу Подать жалобу


План дренажа. Проект частного сада (15,4 сотки). Категория: Ландшафтный дизайн

План дренажа. Проект частного сада (15,4 сотки).

 
 
 
Предыдущая работа: План вертикальной планировки участка.Проект частного сада (15,4 сотки) Следующая работа: Эскиз композиции с новогодним деревом. Вид А

Переход между работами данного фрилансера возможен также с помощью стрелок влево и вправо при зажатой клавише Ctrl.
 
-   -
© 2006-2026 Free-lancers.net
Фрилансеры. Удалённая работа.
В ожидании чуда - 26.06.2026 в 14:04
admin@free-lancers.net
     

Rambler's Top100
О проекте | Обратная связь