Удалённая работа | Работа фрилансера Белоусова Анастасия [apple_sun] | Пример выполнения рабочей документации
-   -
 

Войти на сайт

Забыли пароль? | Регистрация

- Проекты     Фрилансеры     Блоги     Статьи     Сервисы     Инфо-центр     Поиск -

Фрилансер

Белоусова Анастасия Белоусова Анастасия
Дизайн интерьера

Логин: apple_sun
Активность: 02.09.2010 в 23:03 по мск
Сейчас на сайте: Оффлайн нет
Написать личное сообщение Написать личное сообщение
Добавить в команду Добавить в команду
Подать жалобу Подать жалобу


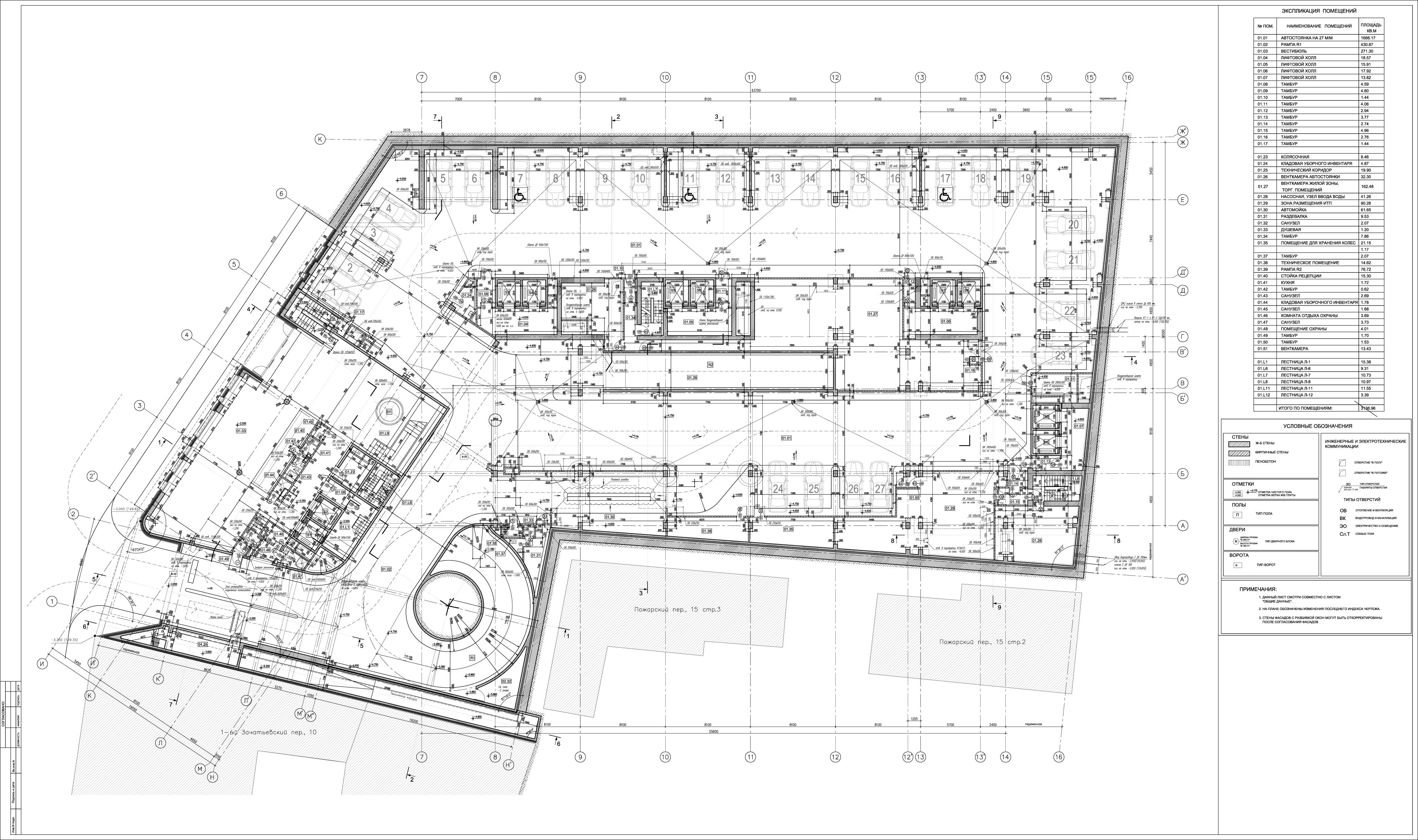
Пример выполнения рабочей документации Категория: Промышленный дизайн

Пример выполнения рабочей документации

 
Описание:
Подземный уровень в жилом доме на Остоженке

 
 
Предыдущая работа: Диплом 2009 Следующая работа: поселок (учебная работа)

Переход между работами данного фрилансера возможен также с помощью стрелок влево и вправо при зажатой клавише Ctrl.
   
Комментарии к работе (0):

Комментарии к данной работе отсутствуют.

 
-   -
© 2006-2026 Free-lancers.net
Фрилансеры. Удалённая работа.
В ожидании чуда - 26.06.2026 в 14:04
admin@free-lancers.net
     

Rambler's Top100
О проекте | Обратная связь