Удалённая работа | Работа фрилансера Дарья Бычкова [kbch] | Рабочий проект фасадов больницы
-   -
 

Войти на сайт

Забыли пароль? | Регистрация

- Проекты     Фрилансеры     Блоги     Статьи     Сервисы     Инфо-центр     Поиск -

Фрилансер

Дарья Бычкова Дарья Бычкова
Дизайн интерьера

Логин: kbch
Активность: 26.02.2011 в 23:02 по мск
Сейчас на сайте: Оффлайн нет
Написать личное сообщение Написать личное сообщение
Добавить в команду Добавить в команду
Подать жалобу Подать жалобу


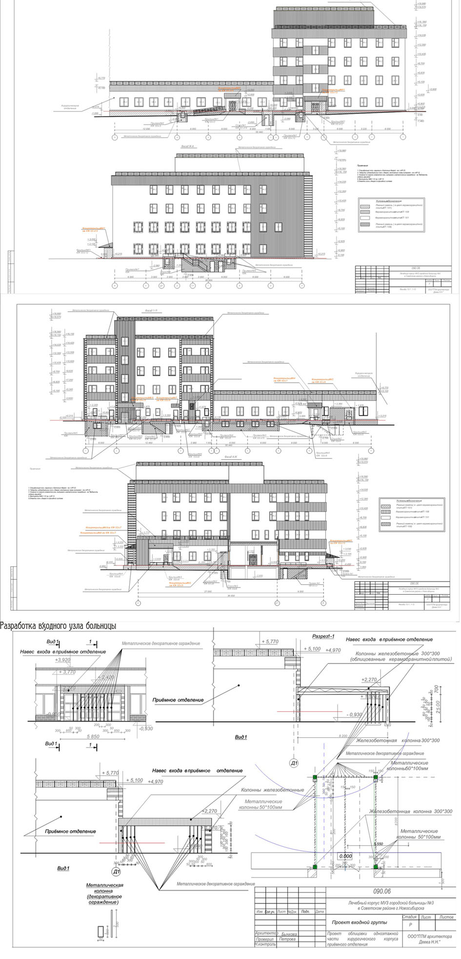
Рабочий проект фасадов больницы Категория: Дизайн интерьера

Рабочий проект фасадов больницы

 
Описание:


 
 
Предыдущая работа: гостиная Следующая работа: Город

Переход между работами данного фрилансера возможен также с помощью стрелок влево и вправо при зажатой клавише Ctrl.
   
Комментарии к работе (0):

Комментарии к данной работе отсутствуют.

 
-   -
© 2006-2026 Free-lancers.net
Фрилансеры. Удалённая работа.
В ожидании чуда - 26.06.2026 в 14:04
admin@free-lancers.net
     

Rambler's Top100
О проекте | Обратная связь