Удалённая работа | Работа фрилансера Лобанова Ксения [lobanova_ks] | Чертеж. Разаботка дверей
-   -
 

Войти на сайт

Забыли пароль? | Регистрация

- Проекты     Фрилансеры     Блоги     Статьи     Сервисы     Инфо-центр     Поиск -

Фрилансер

Лобанова Ксения Лобанова Ксения
Нет специализации

Логин: lobanova_ks
Активность: 27.06.2016 в 12:10 по мск
Сейчас на сайте: Оффлайн нет
Написать личное сообщение Написать личное сообщение
Добавить в команду Добавить в команду
Подать жалобу Подать жалобу


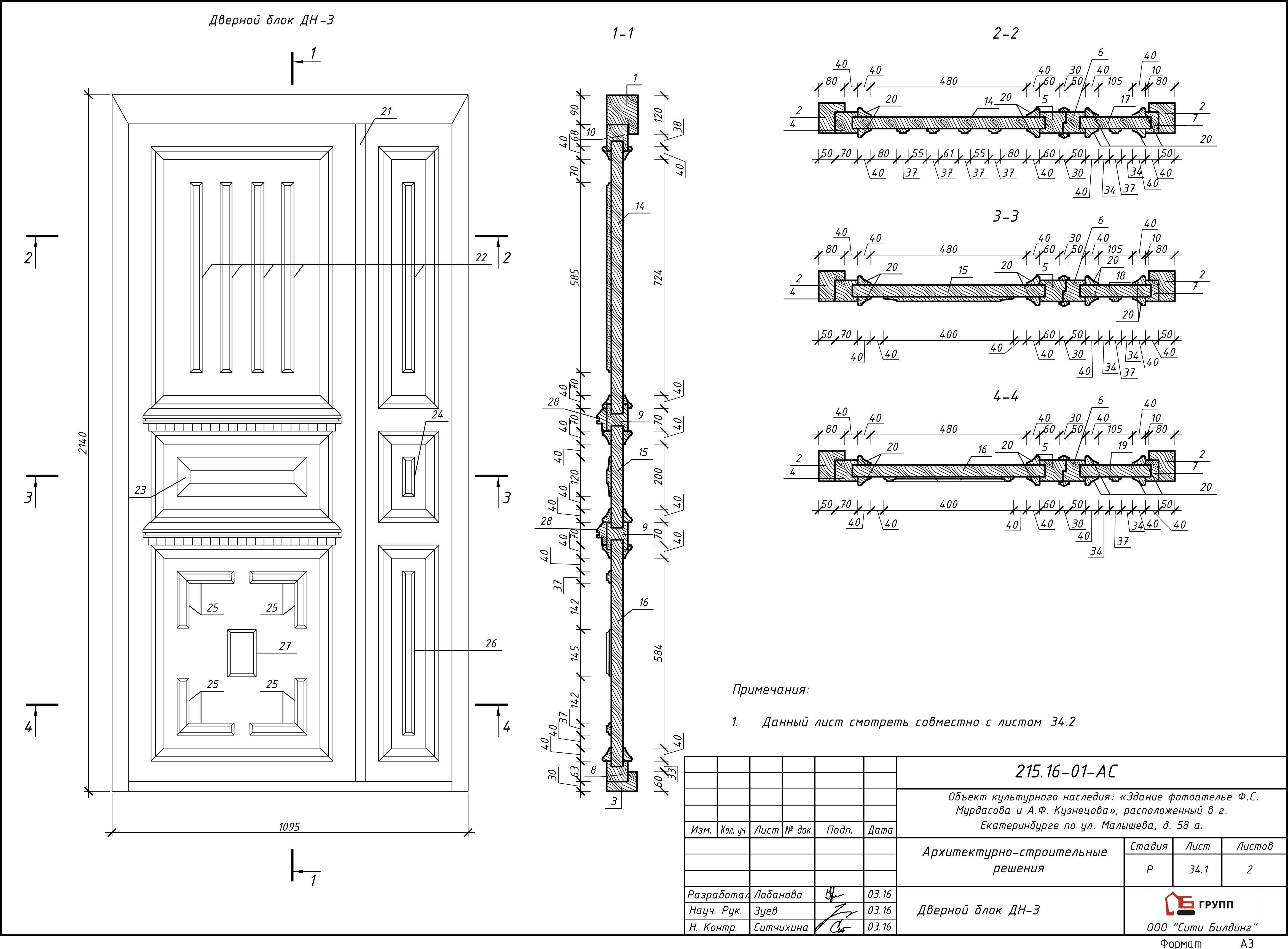
Чертеж. Разаботка дверей Категория: 3D Графика

Чертеж. Разаботка дверей

 
Описание:
Реставрация фасадов объекта культурного значения «Здание фотоателье Ф.С. Мурдасова и А.Ф. Кузнецова», расположенный в г. Екатеринбурге по ул. Малышева, д. 58 а

 
 
Предыдущая работа: Чертеж. Цветовое решение фасадов Следующая работа: Чертеж. Цветовое решение фасадов

Переход между работами данного фрилансера возможен также с помощью стрелок влево и вправо при зажатой клавише Ctrl.
   
Комментарии к работе (0):

Комментарии к данной работе отсутствуют.

 
-   -
© 2006-2026 Free-lancers.net
Фрилансеры. Удалённая работа.
В ожидании чуда - 26.06.2026 в 14:04
admin@free-lancers.net
     

Rambler's Top100
О проекте | Обратная связь