Удалённая работа | Работа фрилансера Качан Ольга [vole4ka84] | стенд для оружия
-   -
 

Войти на сайт

Забыли пароль? | Регистрация

- Проекты     Фрилансеры     Блоги     Статьи     Сервисы     Инфо-центр     Поиск -

Фрилансер

Качан Ольга Качан Ольга
Нет специализации

Логин: vole4ka84
Активность: 03.03.2015 в 11:02 по мск
Сейчас на сайте: Оффлайн нет
Написать личное сообщение Написать личное сообщение
Добавить в команду Добавить в команду
Подать жалобу Подать жалобу


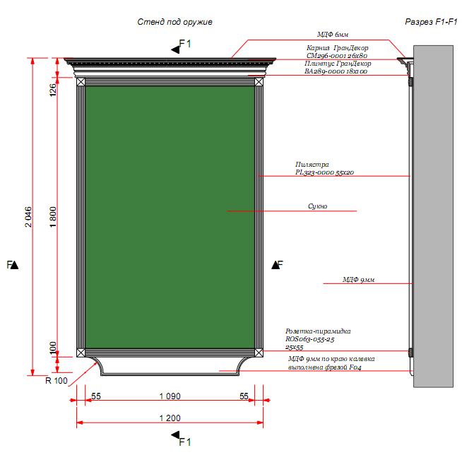
стенд для оружия Категория: Дизайн интерьера

стенд для оружия

 
 
 
Предыдущая работа: витрина Следующая работа: зонирование на спальню и гостинную

Переход между работами данного фрилансера возможен также с помощью стрелок влево и вправо при зажатой клавише Ctrl.
   
Комментарии к работе (0):

Комментарии к данной работе отсутствуют.

 
-   -
© 2006-2026 Free-lancers.net
Фрилансеры. Удалённая работа.
В ожидании чуда - 26.06.2026 в 14:04
admin@free-lancers.net
     

Rambler's Top100
О проекте | Обратная связь